Omschrijving
Albert van Damstraat 18, Zwaag
Bieden vanaf €519.000,- k.k.
In de geliefde Bangert en Oosterpolder gelegen uitgebouwde hoekwoning met circa 10 meter diepe achtertuin gelegen op het zuidwesten.
Indeling: hal met toilet en trapopgang. Gevolgd door de uitgebouwde woonkamer met dubbele openslaande tuindeuren, pleisterwerk plafond en een eiken toplaag plankenvloer met vloerverwarming. De open keuken heeft een U-vormige unit met eikenlook, welke is voorzien van inbouw koelkast/vriezer, combimagnetron, vaatwasser, Quooker, inductiekookplaat, rvs-schouw en composiet aanrecht.
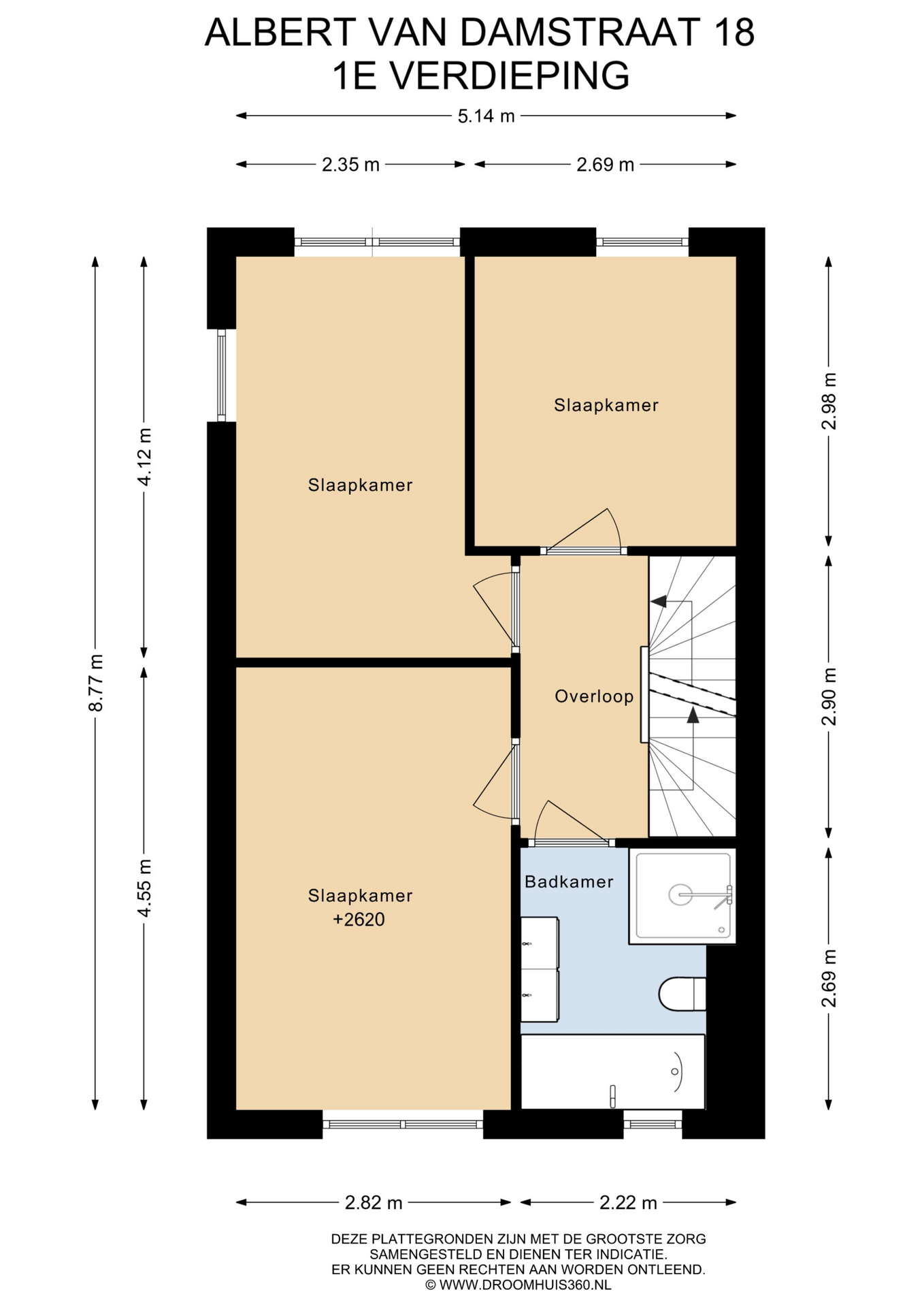
1e verdieping: overloop, 3 slaapkamers en de badkamer, welke is voorzien van een inloopdouche, ligbad, wastafelmeubel en 2e wandcloset.
2e verdieping: overloop met wasmachine/droger aansluiting, een werkhoek en cv-opstelling. Ook bevinden zich hier de 4e en 5e slaapkamer met beide groot Velux dakraam en de vlizotrap naar bergvliering.
De woning bevindt zich op korte loopafstand van wijkwinkelcentrum, sporthal, scholen, kinderdagverblijf en gezondheidscentrum.