Omschrijving
Dirk Breebaartstraat 4, Hoorn
Wonen op loopafstand van de binnenstad, het Markermeer en park. Praktisch nieuw, gasloos en energielabel A+++.
Deze energiezuinige tussenwoning met hoge plafonds, aluminium kozijnen, een dakterras, 4 slaapkamers, 12 zonnepanelen en een eigen parkeerplaats in de parkeergarage is uw bezoek meer dan waard!
Indeling: woonkeuken met dubbele rechte unit voorzien van inbouw elektrische semi-stoomoven, koelkast, vriezer, vaatwasser, inductiekookplaat en afzuigkap, toiletruimte voorzien van wandcloset, sfeervolle woonkamer met schuifpui en toegang tot de achtertuin.
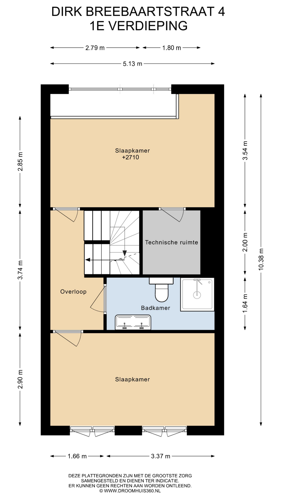
Eerste verdieping: overloop, ruime slaapkamer aan de voorzijde met twee franse balkons, luxe badkamer met inloopdouche, 2e wandcloset en dubbele wastafel in meubel, slaap-/werkkamer aan de achterzijde en technische ruimte.
Tweede verdieping: ruime overloop met toegang tot royaal dakterras (circa 16 m2) op het noordwesten, wasmachine-/bergruimte, 3e slaapkamer en 4e slaapkamer, beide met frans balkon.
De gehele woning is voorzien van eikenlook laminaatvloeren, vloerverwarming en -koeling. De achtertuin is fraai aangelegd, gelegen op het noordwesten en voorzien van een achterom en houten berging.
Let op: het betreft een bieden vanaf prijs