Omschrijving
Lijsbeth Tijsweg 7-46, Berkhout
Op de mooiste kavel van het park, op uw eigen eiland, staat deze ruime vrijstaande recreatiewoning. De woning beschikt over een slaapkamer en badkamer op de begane grond, 2 slaapkamers op de eerste verdieping en vrij uitzicht over de landerijen.
De woning is volledig voorzien van kunststof kozijnen en gevelbekleding, heeft meerdere terrassen en een eigen parkeerplaats voor de deur. De tuin is gelegen op het zuidoosten en circa 11 meter diep. Uw eigen boot kunt u voor de deur kwijt.
Indeling: ruime hal met trapopgang, open keuken met rechte unit en spoeleiland voorzien van vaatwasser, Quooker, 4-pits gasfornuis, combimagnetron, warmhoudlade, koelkast met vriesvak en granieten aanrechtblad, trapkast, ruime woonkamer met fraai uitzicht, grote raampartijen en sfeervolle gashaard in het midden. Middels 2 schuifpuien toegang tot de tuin.
Via de hal toegang tot de ruime badkamer met cv-kast, toilet, wastafel in meubel, douchecabine, infrarood sauna en aansluiting voor de wasmachine en droger, toegang tot de slaapkamer met vaste schuifdeurkast, prachtig uitzicht en via schuifpui toegang tot de tuin. De begane grond is voorzien van een nette laminaatvloer.
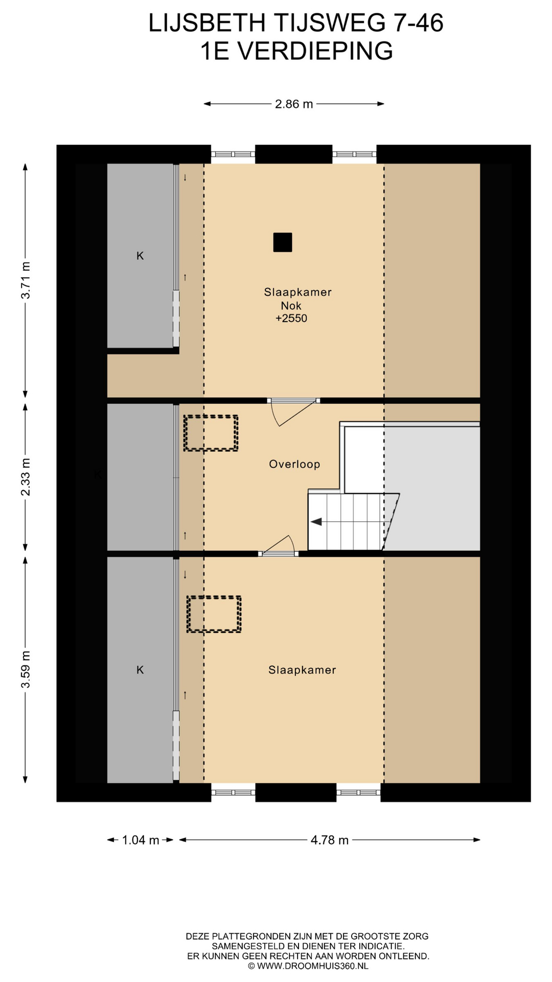
Eerste verdieping: overloop met dakraam en 2 ruime slaapkamers.
Op fietsafstand van Hoorn, stadsstrand en nabij de A7 richting Amsterdam.
Let op: het betreft een bieden vanaf prijs
Aanvaarding: in overleg, kan spoedig