Specificaties
Omschrijving
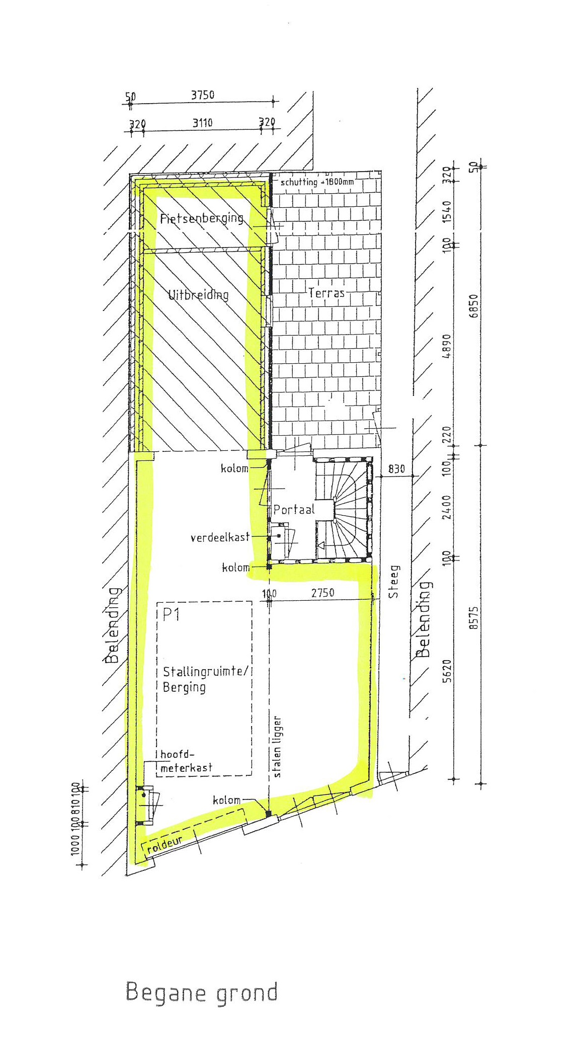
Achterom 38, Hoorn
Goed bereikbare bedrijfsruimte van circa 65 m2 op de begane grond, midden in het centrum van Hoorn. De ruimte wordt turn-key opgeleverd voorzien van een pantry met warmwatervoorziening, toilet, elektrische schuifdeur, verlichting en rubber vloerafwerking. Zeer geschikt voor opslag en stalling van uw auto.